REF. T2-201
Appartement T2
65.86m² + balcon de plus de 15m²
Détail de la superficie :
| Dégagement | 10.19 m² |
| Espace jour | 31.85 m² |
| Chambre | 16.71 m² |
| Bains WC | 7.11 m² |
| TOTAL | 65.86 m² |
| Balcon | 15.30 m² |
Cet appartement vous intéresse, contactez-nous :
* Champ obligatoire
** Vous avez la possibilité de vous inscrire sur bloctel.gouv.fr pour faire opposition au démarchage téléphonique Bloctel est gratuit
REF. T4-202
Appartement T4
125.86m² avec Terrasse et Rangement
Détail de la superficie :
| Dégagement | 9.41 m² |
| Espace jour | 52.80 m² |
| Chambre 1 | 16.31 m² |
| Chambre 2 | 13.77 m² |
| Chambre 3 | 13.88 m² |
| Salle d’eau WC | 5.15 m² |
| Dressing | 5.58 m² |
| Bains | 4.45 m² |
| WC | 1.26 m² |
| Cellier | 3.25 m² |
| TOTAL | 125.86 m² |
| Terrasse | 29.07 m² |
| Rangement | 2.57 m² |
réservé
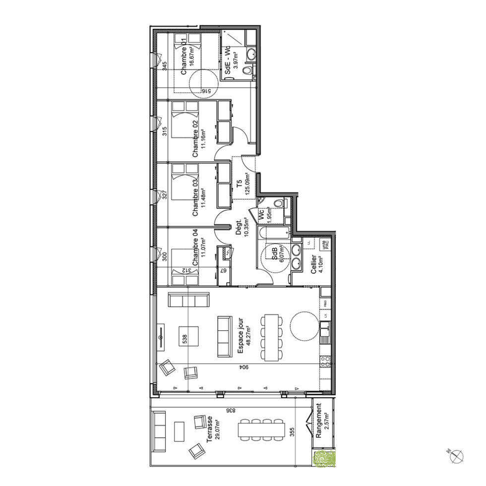
REF. T5-203
Appartement T5
125.09m² avec Terrasse et Rangement
Détail de la superficie :
| Dégagement | 10.35 m² |
| Espace jour | 48.27 m² |
| Chambre 1 | 16.67 m² |
| Chambre 2 | 11.16 m² |
| Chambre 3 | 11.48 m² |
| Chambre 4 | 11.07 m² |
| Salle d’eau WC | 3.97 m² |
| Bains | 6.07 m² |
| WC | 1.95 m² |
| Cellier | 4.10 m² |
| TOTAL | 125.09 m² |
| Terrasse | 29.07 m² |
| Rangement | 2.57 m² |
réservé
Découvrez le RDC
Découvrez le R + 1
Découvrez le R + 3

A 10 mn
de la Gare TGV

À 10 mn
des carrefours autoroutiers Paris-Marseille-Genève

À 1.8 km
du centre-ville de Charnay

À 1 km
du pôle médical

À 1 km
du centre-ville de Mâcon

À 1 km
du centre culturel

