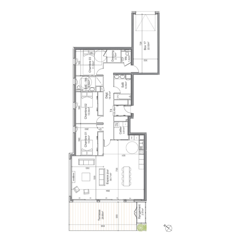
REF. T4-001
Appartement T4
135.46m² + TERRASSE ET BOX
Détail de la superficie :
| Dégagement | 19.41 m² |
| Espace jour | 58.71 m² |
| Chambre 1 | 13.04 m² |
| Chambre 2 | 13.04 m² |
| Chambre 3 | 11.50 m² |
| Salle d’eau WC | 5.54 m² |
| Dressing | 2.70 m² |
| Bains | 6.09 m² |
| WC | 1.62 m² |
| Cellier | 3.81 m² |
| TOTAL | 135.46 m² |
| Terrasse | 29.66 m² |
| Rangement | 2.57 m² |
| Box 17 RDC | 22.02 m² |
Cet appartement vous intéresse, contactez-nous :
* Champ obligatoire
** Vous avez la possibilité de vous inscrire sur bloctel.gouv.fr pour faire opposition au démarchage téléphonique Bloctel est gratuit
Découvrez le R + 1
Découvrez le R + 2
Découvrez le R + 3

A 10 mn
de la Gare TGV

À 10 mn
des carrefours autoroutiers Paris-Marseille-Genève

À 1.8 km
du centre-ville de Charnay

À 1 km
du pôle médical

À 1 km
du centre-ville de Mâcon

À 1 km
du centre culturel

