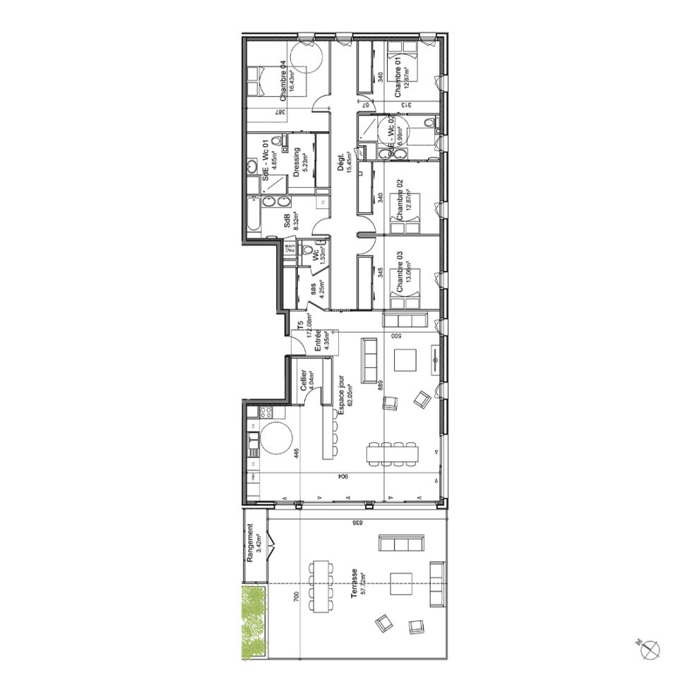
REF. T5-301
Appartement T5
172.09m² + Terrasse + rangement
Détail de la superficie :
| Entrée | 4.35 m² |
| Sas | 4.25 m² |
| Dégagement | 15.45 m² |
| Espace jour | 62.05 m² |
| Chambre 1 | 12.87 m² |
| Salle d’eau WC | 6.99 m² |
| Chambre 2 | 12.87 m² |
| Chambre 3 | 13.06 m² |
| Chambre 4 | 16.43 m² |
| Salle d’eau WC | 4.65 m² |
| Dressing | 5.23 m² |
| Bains | 8.32 m² |
| WC | 1.53 m² |
| Cellier | 4.04 m² |
| TOTAL | 172.09 m² |
| Terrasse | 57.72 m² |
| Rangement | 3.42 m² |
Cet appartement vous intéresse, contactez-nous :
* Champ obligatoire
** Vous avez la possibilité de vous inscrire sur bloctel.gouv.fr pour faire opposition au démarchage téléphonique Bloctel est gratuit
REF. T5-302
Appartement T5
172.09m² + Terrasse + rangement
Détail de la superficie :
| Entrée | 4.35 m² |
| Sas | 4.25 m² |
| Dégagement | 15.45 m² |
| Espace jour | 62.05 m² |
| Chambre 1 | 12.87 m² |
| Salle d’eau WC | 6.99 m² |
| Chambre 2 | 12.87 m² |
| Chambre 3 | 13.06 m² |
| Chambre 4 | 16.43 m² |
| Salle d’eau WC | 4.65 m² |
| Dressing | 5.23 m² |
| Bains | 8.32 m² |
| WC | 1.53 m² |
| Cellier | 4.04 m² |
| TOTAL | 172.09 m² |
| Terrasse | 57.72 m² |
| Rangement | 3.42 m² |
réservé
Découvrez le RDC
Découvrez le R + 1
Découvrez le R + 2

A 10 mn
de la Gare TGV

À 10 mn
des carrefours autoroutiers Paris-Marseille-Genève

À 1.8 km
du centre-ville de Charnay

À 1 km
du pôle médical

À 1 km
du centre-ville de Mâcon

À 1 km
du centre culturel

